WOOLLAMIA - JERVIS BAY, NSW.
APPROVED SITE + FISHERMAN'S COTTAGE
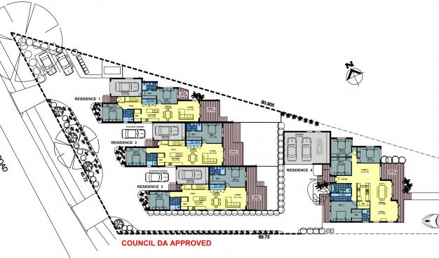
An amazing opportunity now exists to secure this DA approved, waterfront home site. Also included are draft plans for the block to be sub-divided, leaving a huge 1103m2 parcel that is planned to be utilised for 3 luxury townhouses.
- Massive 1992m2 waterfront property zoned RU5 Village.
- Original 3 bed Fisherman's cottage with garage & carport.
- Direct access to Currambene Creek for Kayaks, SUP's etc.
- Approx 3 kms to trendy cafes, boutique restaurants & more.
- Approx 1.2kms to Flamin Galah Brewing & JB Brewery.
- Three bedroom, one bathroom cottage, currently tenanted.
Ideal for owner occupiers, the retired or semi-retired, someone wanting to potentially run their own holiday rental complex or maybe build and sell.
All enquiries or to book a private inspection please contact Scott Morton on 0405 227 987, Ashton Haddy-Morton on 0408 162 849 or you can contact our office on 44417 514.
- Massive 1992m2 waterfront property zoned RU5 Village.
- Original 3 bed Fisherman's cottage with garage & carport.
- Direct access to Currambene Creek for Kayaks, SUP's etc.
- Approx 3 kms to trendy cafes, boutique restaurants & more.
- Approx 1.2kms to Flamin Galah Brewing & JB Brewery.
- Three bedroom, one bathroom cottage, currently tenanted.
- Massive 1992m2 waterfront property zoned RU5 Village.
- Original 3 bed Fisherman's cottage with garage & carport.
- Direct access to Currambene Creek for Kayaks, SUP's etc.
- Approx 3 kms to trendy cafes, boutique restaurants & more.
- Approx 1.2kms to Flamin Galah Brewing & JB Brewery.
- Three bedroom, one bathroom cottage, currently tenanted.













